Villa singola in vendita

Casapinta, Via Roma
€ 190.000
Prezzo aggiornato
11 locali 11 locali
375 Mq 375 Mq
4 bagni 4 bagni

Villa singola in vendita

Casapinta, Via Roma

Descrizione annuncio

Questa stupenda Villa d'Epoca, dei primi anni '20, conserva moltissime caratteristiche originali. Si trova a Casapinta un piccolo Comune nella provincia di Biella, in Piemonte.
L'immobile è circondato da un ampio giardino pianeggiante di circa 1.700 metri quadrati, oltre ad altri 1.800 metri di terreno boschivo, sempre adiacente alla proprietà.
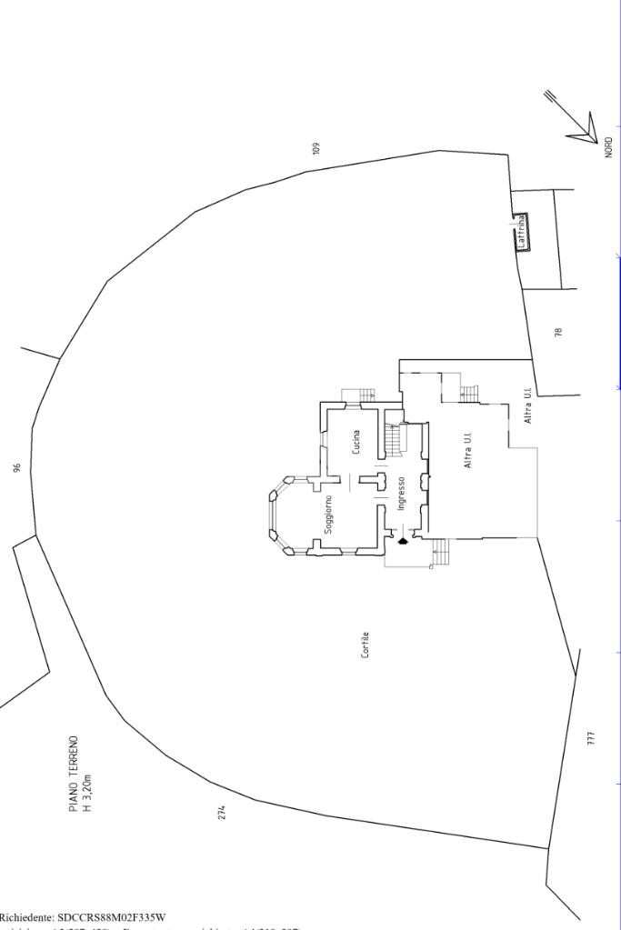
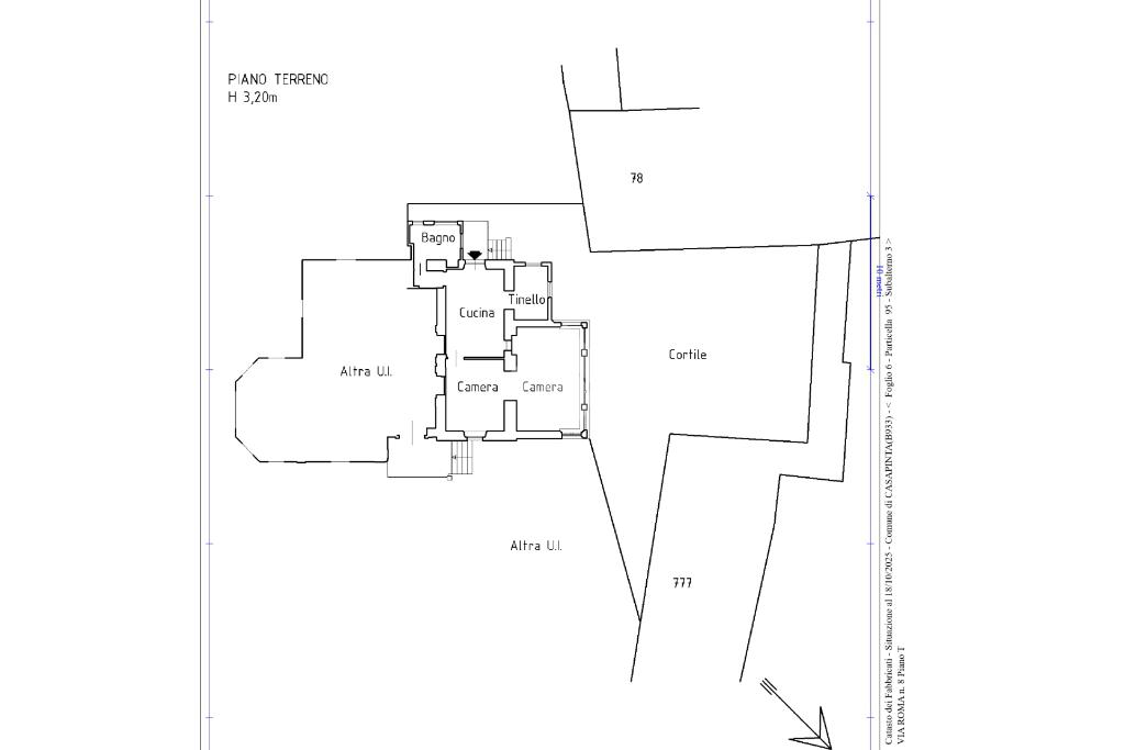
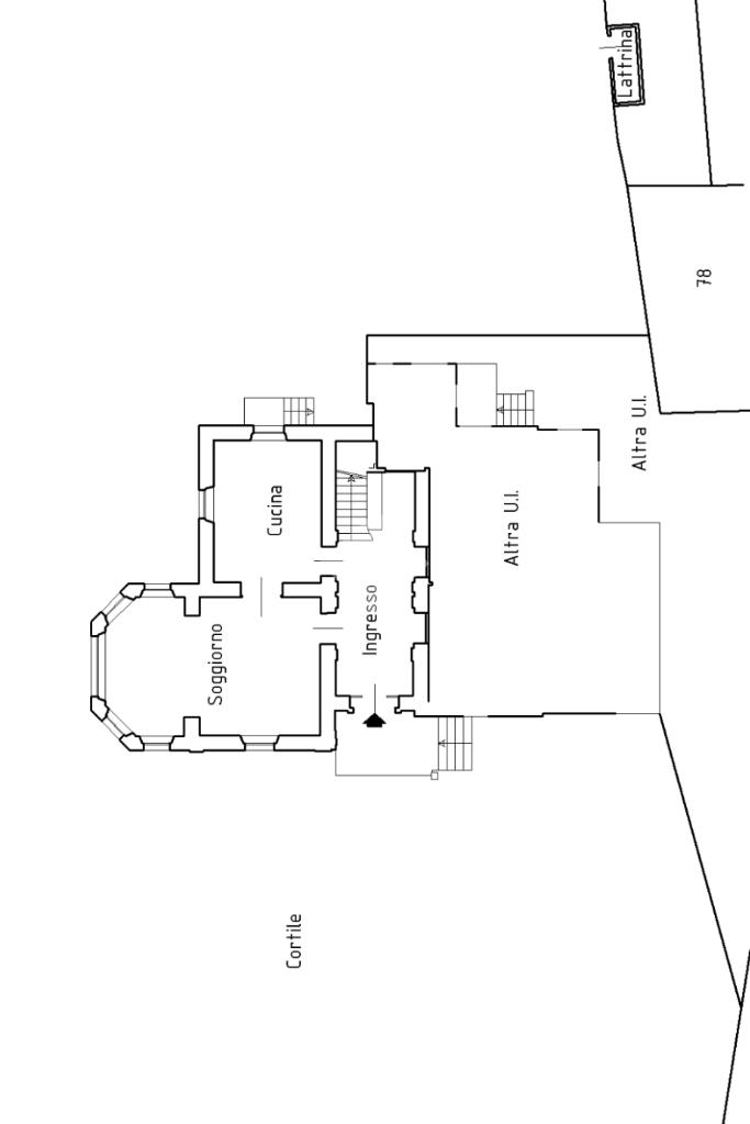
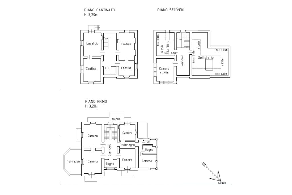
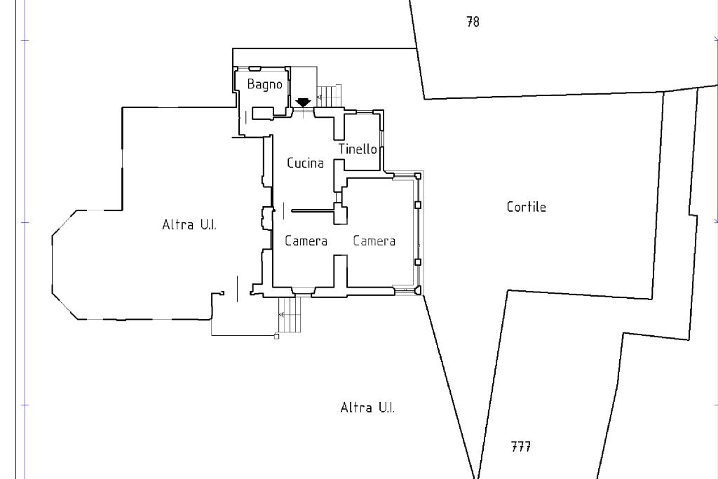
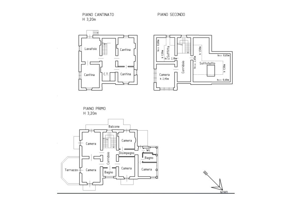
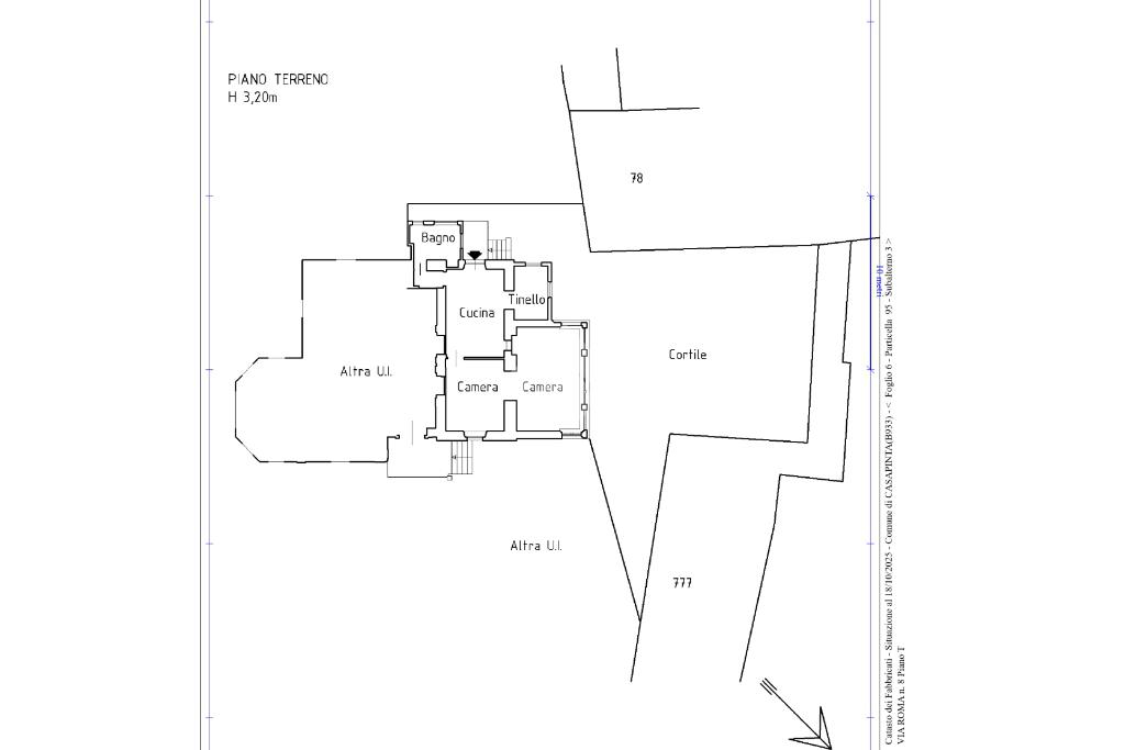
Una piccola scalinata conduce all'ingresso principale della villa. Su questo piano troviamo la zona giorno composta da una cucina abitabile, due ampi saloni con grandi vetrate che si affacciano sul giardino, uno dei queli con soffitto affrescato ed un importante caminetto, a servizio del piano un primo bagno di recente ristrutturazione dotato di doccia. L'importante scala in marmo con corrimano in ferro battuto e legno conducono al primo piano dove si trova la zona notte. Le camere da letto sono 5 tutte di buona metratura e dotate di balcone o terrazzo privato con vista sul verde e pavimenti in legno. Tre bagni servono queste camere, uno di servizio, il secondo in marmo rosa e pareti con mosaico con vasca ed il terzo con una splendida vetrata originale con vetri colorati. Tre terrazzi circondano questo. All'ultimo piano vi è il sottotetto tramite cui si raggiunge la torretta dove è situata un'ultima camera da letto di genereso dimensioni.
Tra i locali tecnici l'immobile offre al piano interrato il vano caldaia, la lavanderia, la legnaia e la cantina, tutti con soffitto a volta e mattoni a vista. L'immobile veniva riscaldato mediante una caldaia a gasolio. I pavimenti sono tutti originali e ben conservati, cosi come lo sono le porte, gli infissi e le numerose caratteristiche vetrate. E' un immobile da conservare e restaurare dotato di un fascino incredibile. Da girare osservando tutti i dettagli di cui dispone. Si trova in un contesto riservato e discreto, ma comodo ai servizi, grazie alla vicinanza di un piccolo negozio alimentari che serve il paese.

Mostra tutto

Nelle vicinanze

Ricariche auto elettriche Ricariche auto elettriche
Villa Guelpa B&B
2,1 Km
Scuole Scuole
Scuola Secondaria primo grado
2,5 Km
Scuola Primaria
2,6 Km
Scuola dell'Infanzia
2,6 Km
Farmacia Farmacia
Farmacia
1,9 Km
Farmacia Lodigiani
2,9 Km
Ristoranti Ristoranti
Il Mulino
2,3 Km
Malvarosa
2,7 Km
Mostra tutto

Caratteristiche

Rif.:
61131819
Piano:
Su più livelli di 4
Totale piani:
4
Posti auto:
1
Balconi:
3
Terrazzi:
3
Mostra tutto
Prezzo Prezzo
€ 190.000
Rata mutuo Rata mutuo
€ 882 / mese
Spese annue Spese annue
€ 0
Proponi il tuo prezzoProponi il tuo prezzo
Immobile valutato con T·Valuta

Classe Energetica

G
G
G
G
G
G
G
G
G
EP globale non rinnovabile:
505.71 kW h/m² anno
EP globale rinnovabile:
2.25 kW h/m² anno
EP invernale del fabbricato:
EP estiva del fabbricato:
Anno di costruzione:
1920
Riscaldamento:
Autonomo
Tipo impianto:
A radiatori
Tipo alimentazione:
Gasolio

Prezzo ridotto di €1 (10%%)

Ti interessa visionare l'immobile?

Fissa un appuntamento  Fissa un appuntamento

Richiedi informazioni

Clicca su Leggi per aprire l'informativa
* Questi campi sono obbligatori

Calcola il tuo mutuo

Semplice e senza impegno
Anticipo

( % )
Mutuo

( % )

pochi semplici passi

inserisci i tuoi dati
Questionario completato
Grazie per aver richiesto un appuntamento senza impegno con un nostro Consulente del Credito e Assicurativo.

Hai inserito correttamente tutti i dati necessari e a breve riceverai una e-mail con un link da convalidare per inviare i tuoi dati.
Affiliato
Studio Valle Mosso Srl
Via Sella, 53 13835 Valdilana (BI)

Il nostro staff


  • Simona Cantoia
    Affiliata

  • Davide Gallia
    Collaboratore

  • Maria Nicole Lanfranco
    Collaboratrice

  • Jacopo Vellar
    Collaboratore
Via Sella, 53 13835 Valdilana (BI)
Zona: Valle Mosso - Strona - Mosso - V.S. Nicolao - Bioglio
Mostra su mappa
Orari: lunedì/venerdì dalle 9.00 alle 12.30 e dalle 15.00 alle 19.30; sabato 9.00/12.30- 15.00/19.00.
Affiliato
Studio Valle Mosso Srl
Via Sella, 53 13835 Valdilana (BI)

2026 Tecnocasa Franchising S.p.A. - P. IVA 08365160152 - Via Monte Bianco 60/A 20089 Rozzano (MI). Ogni agenzia ha un proprio titolare ed è autonoma. Privacy policy | Policy utilizzo | Cookie policy