Trifamiliare in vendita

Casapinta, Via Roma
€ 205.000
16 locali 16 locali
390 Mq 390 Mq
7 bagni 7 bagni

Trifamiliare in vendita

Casapinta, Via Roma

Descrizione annuncio

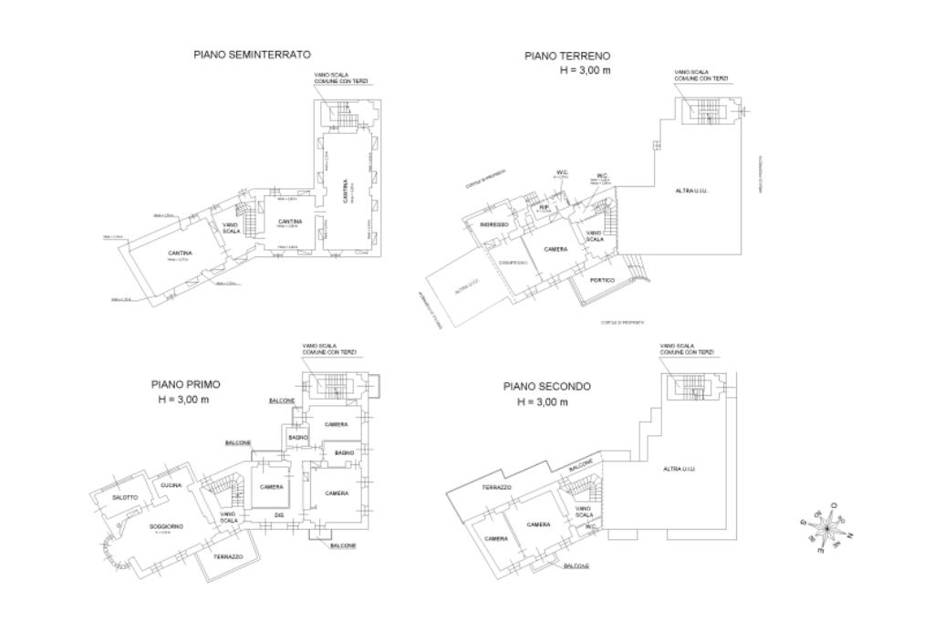
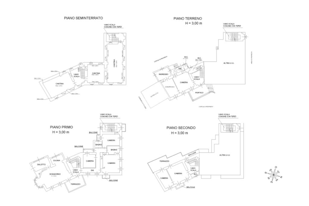
Questa villa la cui costruzione risale ai primi anni '20 è situata al centro di Casapinta, in Piemonte, e si compone di tre unità indipiendenti tra loro. Dalla strada principale si accede alla proprietà tramite un cancello privato che conduce al cortile ed al giardino. Sviluppata su tre piani abitativi troviamo al piano terra il primo alloggio, con ingresso indipendente e composto da cucina con angolo cottura, soggiorno e sala pranzo caratterizzate dal caminetto a legna con parete in pietra, un bagno con doccia ed una camera da letto. La scala in legno conduce al piano superiore in cui vi è l'apprtamento patronale, di recentissima ristrutturazione. La zona giorno è situata in un unico ed ampio ambiete collegato al terrazzo; la cucina si affaccia sul soggiorno dotato di caminetto e di un affascinante bow window; a completare questo ambiente una comoda veranda. La zona notte si compone di una grande camera matrimoniale con bagno privato dotato di vasca. Due camerette con balcone servite da un secondo bagno. La scala principale conduce al secondo ed ultimo piano in cui vi sono ancora due camere a servizio di questa unità, al momento utilizzate come studio e palestra. La terza unità, anch'essa con ingresso indipendente si compone di Cucina, soggiorno e camera, il tutto servito da un bagnetto. A completare la proprietà troviamo al piano terra locali tecnici, e di sgombero; da qui è possibile collegarsi al giardino posto sul retro della proprietà. Un ampio box auto di 25 metri quadrati. Al piano interrato vi sono le cantine. L'appartamento al primo piano viene riscaldato mediante una caldaia a legna collegata all'impianto di riscaldamento completamente rifatto. Gli altri alloggi invece sono riscaldati tramite canne fumarie o caminetti. Il giardino circostante è di circa 1.900 metri quadrati tra cortile e prato.
Si specifica che nel cortile vi è un diritto di passaggio pedonale e carrabile a favore della villa vicino.

Mostra tutto

Nelle vicinanze

Ricariche auto elettriche Ricariche auto elettriche
Villa Guelpa B&B
2,1 Km
Scuole Scuole
Scuola Secondaria primo grado
2,6 Km
Scuola Primaria
2,6 Km
Scuola dell'Infanzia
2,6 Km
Farmacia Farmacia
Farmacia
1,9 Km
Farmacia Lodigiani
2,9 Km
Ristoranti Ristoranti
Il Mulino
2,3 Km
Malvarosa
2,7 Km
Mostra tutto

Caratteristiche

Rif.:
61155986
Piano:
Su più livelli di 3
Totale piani:
3
Box:
1
Posti auto:
2
Balconi:
7
Mostra tutto
Prezzo Prezzo
€ 205.000
Rata mutuo Rata mutuo
€ 974 / mese
Spese annue Spese annue
€ 0
Proponi il tuo prezzoProponi il tuo prezzo
Immobile valutato con T·Valuta

Classe Energetica

D
D
D
D
D
D
D
D
D
EP globale non rinnovabile:
104.41 kW h/m² anno
EP globale rinnovabile:
152.38 kW h/m² anno
EP invernale del fabbricato:
EP estiva del fabbricato:
Anno di costruzione:
1920
Riscaldamento:
Autonomo
Tipo impianto:
A radiatori
Tipo alimentazione:
Altro

Ti interessa visionare l'immobile?

Fissa un appuntamento  Fissa un appuntamento

Richiedi informazioni

Clicca su Leggi per aprire l'informativa
* Questi campi sono obbligatori

Calcola il tuo mutuo

Semplice e senza impegno
Anticipo

( % )
Mutuo

( % )

pochi semplici passi

inserisci i tuoi dati
Questionario completato
Grazie per aver richiesto un appuntamento senza impegno con un nostro Consulente del Credito e Assicurativo.

Hai inserito correttamente tutti i dati necessari e a breve riceverai una e-mail con un link da convalidare per inviare i tuoi dati.
Affiliato
Studio Valle Mosso Srl
Via Sella, 53 13835 Valdilana (BI)

Il nostro staff


  • Simona Cantoia
    Affiliata

  • Davide Gallia
    Collaboratore

  • Maria Nicole Lanfranco
    Collaboratrice

  • Jacopo Vellar
    Collaboratore
Via Sella, 53 13835 Valdilana (BI)
Zona: Valle Mosso - Strona - Mosso - V.S. Nicolao - Bioglio
Mostra su mappa
Orari: lunedì/venerdì dalle 9.00 alle 12.30 e dalle 15.00 alle 19.30; sabato 9.00/12.30- 15.00/19.00.
Affiliato
Studio Valle Mosso Srl
Via Sella, 53 13835 Valdilana (BI)

2026 Tecnocasa Franchising S.p.A. - P. IVA 08365160152 - Via Monte Bianco 60/A 20089 Rozzano (MI). Ogni agenzia ha un proprio titolare ed è autonoma. Privacy policy | Policy utilizzo | Cookie policy