Palazzina in vendita

Pettinengo, Via Duca D'Aosta
€ 30.000
9 locali 9 locali
224 Mq 224 Mq
4 bagni 4 bagni

Palazzina in vendita

Pettinengo, Via Duca D'Aosta

Descrizione annuncio

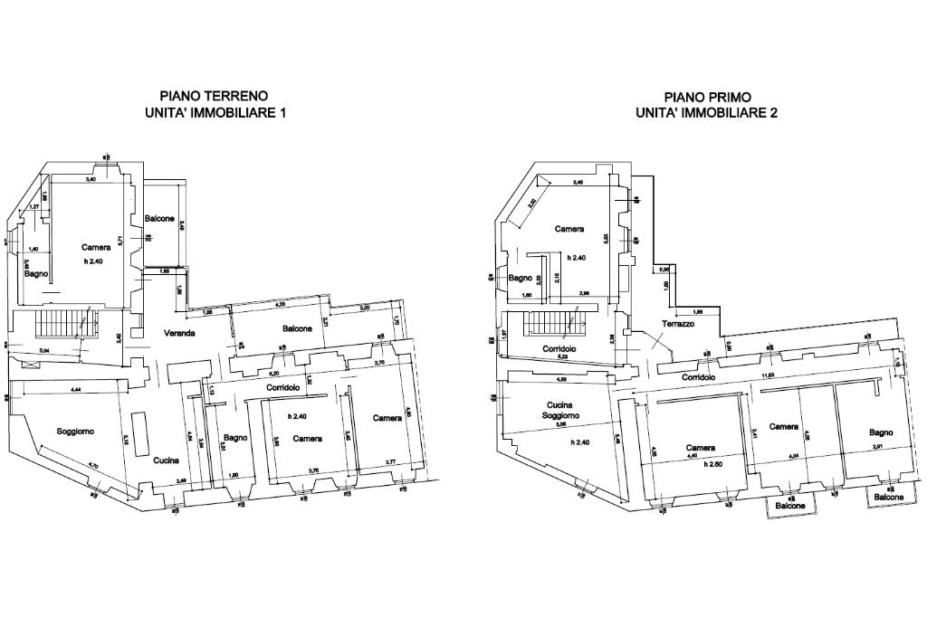
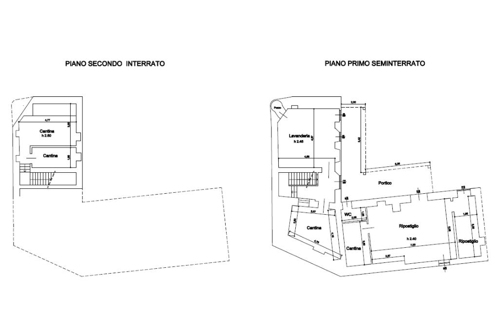
Questa spaziosa casa bifamiliare si trova nel tranquillo e panoramico comune di Pettinengo. L'abitazione offre due appartamenti indipendenti con locali di buona metratura. L'alloggio al piano terreno mette a disposizione una zona giorno spaziosa composta da sala e cucina comunicanti. La zona notte è invece composta da una cameretta e da due spaziose camere doppie, una delle quali dotata anche di bagno. Conclude il piano il bagno con vasca. L'appartmamento al piano primo dispone di una spaziosa zona giorno formata da un open-space sala e cucina, la zona notte mette a disposizione tre camere doppie di buona metratura con parquet, una delle quali dotata di bagno. Concludono il piano il soleggiato terrazzo e lo spazioso bagno con vasca. A disposizione vi sono anche diversi locali tecnici ad uso deposito, cantina e lavanderia oltre che ad un portico privato.

Mostra tutto

Nelle vicinanze

Ricariche auto elettriche Ricariche auto elettriche
Municipio di Piatto | EnelX
3,0 Km
Scuole Scuole
Scuola dell'Infanzia
2,9 Km
Farmacia Farmacia
Farmacia
790 m
Farmacia Dott. Del Conte
2,0 Km
Farmacia Caccia
2,8 Km
Supermercati Supermercati
Supermercati
2,0 Km
Bar Bar
Bar
2,3 Km
Ristoranti Ristoranti
Bar San Sebastiano
450 m
La Foresteria di Banchette - Bioglio
1,9 Km
Ristoranti
2,3 Km
Agriturismo Cascina Rovet
2,3 Km
Mostra tutto

Caratteristiche

Rif.:
61044078
Piano:
3 di 3 (Piano su più livelli)
Balconi:
4
Terrazzi:
1
Camere da letto:
6
Arredamento:
Assente
Mostra tutto
Prezzo Prezzo
€ 30.000
Rata mutuo Rata mutuo
€ 139 / mese
Spese annue Spese annue
€ 0
Proponi il tuo prezzoProponi il tuo prezzo
Immobile valutato con T·Valuta

Classe Energetica

G
G
G
G
G
G
G
G
G
EP globale non rinnovabile:
380.54 kW h/m² anno
EP globale rinnovabile:
0.00 kW h/m² anno
EP invernale del fabbricato:
EP estiva del fabbricato:
Anno di costruzione:
1900
Riscaldamento:
Autonomo
Tipo impianto:
A radiatori
Tipo alimentazione:
Metano

Ti interessa visionare l'immobile?

Fissa un appuntamento  Fissa un appuntamento

Richiedi informazioni

Clicca su Leggi per aprire l'informativa
* Questi campi sono obbligatori

Calcola il tuo mutuo

Semplice e senza impegno
Anticipo

( % )
Mutuo

( % )

pochi semplici passi

inserisci i tuoi dati
Questionario completato
Grazie per aver richiesto un appuntamento senza impegno con un nostro Consulente del Credito e Assicurativo.

Hai inserito correttamente tutti i dati necessari e a breve riceverai una e-mail con un link da convalidare per inviare i tuoi dati.
Affiliato
Studio Valle Mosso Srl
Via Sella, 53 13835 Valdilana (BI)

Il nostro staff


  • Simona Cantoia
    Affiliata

  • Davide Gallia
    Collaboratore

  • Maria Nicole Lanfranco
    Collaboratrice

  • Jacopo Vellar
    Collaboratore
Via Sella, 53 13835 Valdilana (BI)
Zona: Valle Mosso - Strona - Mosso - V.S. Nicolao - Bioglio
Mostra su mappa
Orari: lunedì/venerdì dalle 9.00 alle 12.30 e dalle 15.00 alle 19.30; sabato 9.00/12.30- 15.00/19.00.
Affiliato
Studio Valle Mosso Srl
Via Sella, 53 13835 Valdilana (BI)

2026 Tecnocasa Franchising S.p.A. - P. IVA 08365160152 - Via Monte Bianco 60/A 20089 Rozzano (MI). Ogni agenzia ha un proprio titolare ed è autonoma. Privacy policy | Policy utilizzo | Cookie policy